Purpose and Application
The INCANTO insulated floor steel hatch with gas springs is designed for quick and easy access to basements, cellars, utility rooms, and various engineering communications
Hidden Integration and Finishing
The hatch design allows for easy integration into any type of flooring, creating a continuous surface that maintains the aesthetic integrity of your space. The hatch cover is intended for finishing with ceramic tiles, porcelain stoneware, microcement, microconcrete, wood planks, laminate, linoleum, quartz vinyl, or parquet.A finishing layer thickness of up to 20 mm is allowed, including the adhesive layer.
Reliable Lock and Ease of Use
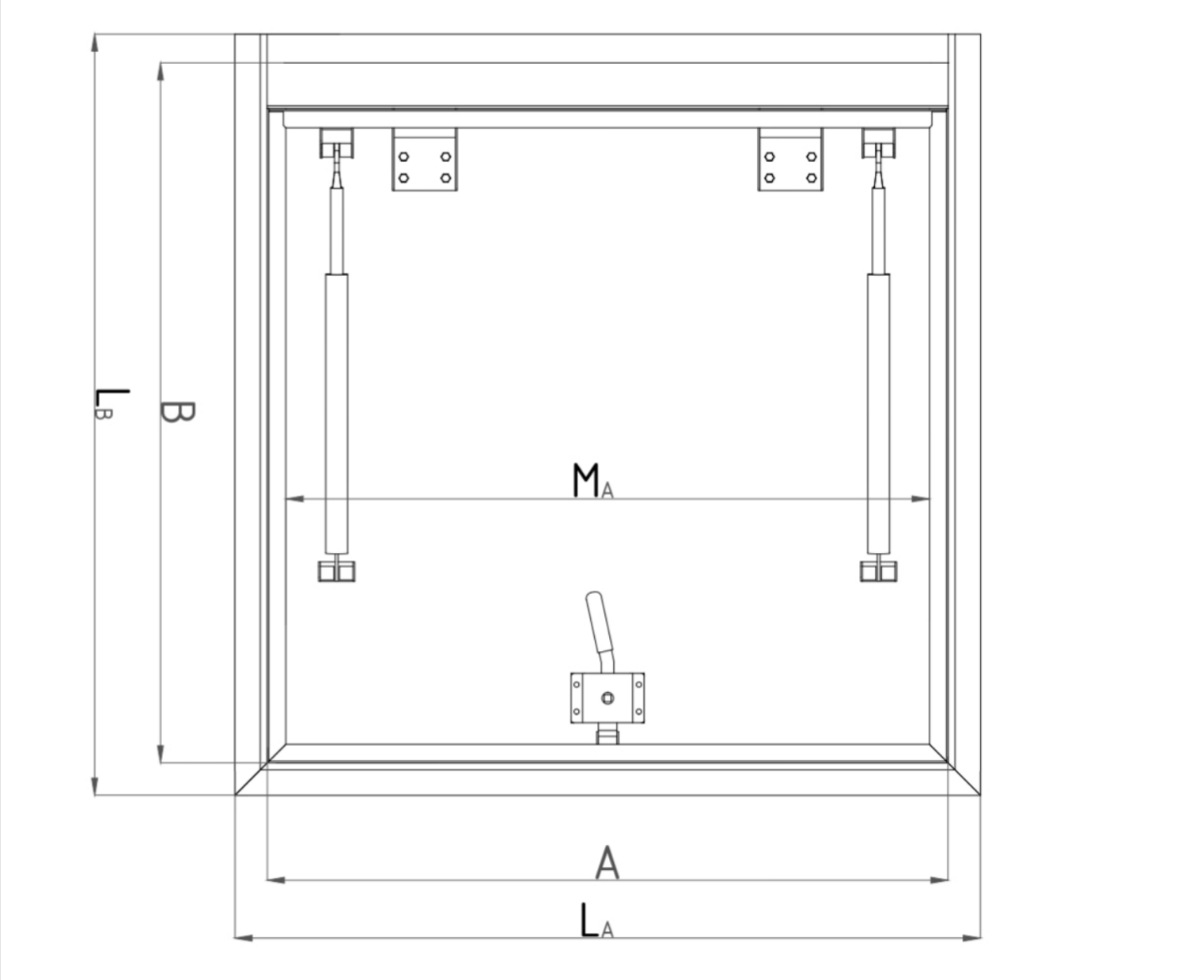
The hatch cover is secured with a durable industrial-grade lock featuring a convenient built-in handle, allowing the hatch to be opened from the inside.
Protection Against External Elements
A rubber double-seal runs along the entire perimeter of the hutch cover, ensuring a tight fit. This provides full protection against dust and moisture. The hatch cover is insulated with PIR thermal insulation. When closed, it helps maintain the designated temperatures in both the lower and upper rooms.
Coating and Durability
The product is coated with a powder paint followed by thermal polymerization, which ensures high wear resistance and long-lasting surface durability.
Gas Springs and Smooth Opening
The hatch is equipped with high-quality European gas springs, individually selected for each size and load. These gas springs ensure smooth opening and controlled deceleration of the cover.
Materials and Construction
The hatch frame is made of S235JR grade steel, which is widely used in various structural applications. Additional reinforcing ribs and heavy-duty strengthened hinges are used, providing even greater structural strength. To ensure strength and corrosion resistance, stainless steel pins are used in the hinges.

| A | Mounting Width (hinge-side) |
| B | Mounting Height |
| LA = A + 76mm | Overall width of the hatch (hinge side) |
| LB = B + 72mm | Overall height of the hatch |
| CA = A - 14mm | Door width (hinge side) |
| CB = B - 62mm | Door height |
| NA = A + 10mm | Width of the installation opening (hinge side) |
| NB = B + 10mm | Height of the installation opening |
| MA = A - 44mm | Clear opening width (hinge side) |
| MB = B - 98mm | Clear opening height |
| S ≤ 20mm | Thickness of the finishing material (including adhesive) |
| D = 100mm | Frame depth |
| (1) | Gas spring / Electric actuator |
| (2) | Finishing material / tread plate |
| (3) | Hinge |
| (4) | Seal |
| (5) | Anchors |
| (6) | Lock |
| (7) | Lock cylinder (height adjustable) |
| (8) | Insulation |
| (9) | Hatch cover surface material |
| (10) | Slab |
Alternative installation method

| NB = B - 40mm |


Main
S'intègre parfaitement dans l'espace
Satisfaction de l'achat
Free Shipping within the EU
We offer free shipping to all European Union countries using the reliable courier service DHL.
Delivery time is approximately 5-6 business days.
International Shipping
If you are located outside the EU, the shipping cost is determined individually. Please contact us by email: info@grotus.eu
Customs Duties and Taxes
For customers from European Union countries:
- VAT is already included in the product price.
For customers from countries outside the European Union:
- VAT is not charged at checkout. Customs duties and fees are payable upon receipt of the goods in accordance with the laws of your country.
Payment Methods
We accept the following payment methods:
- Bank credit and debit cards
- Bank transfer
- PayPal
After placing and dispatching your order, you will receive a unique tracking number, which you can use to track your parcel status on the official DHL website.