Purpose and Application
The LIFT insulated stainless steel floor hatch with gas springs with tread plate is designed for quick and convenient access to basements, cellars, utility areas, and various service communications. It is ideally suited for use in high-humidity environments, direct contact with water, and for use in other harsh environments
Integration and Finishing
The hatch’s design allows for easy integration into any type of flooring. Its cover is fitted with a 3 mm thick metal treat plate for enhanced durability and slip resistance. This model is compatible with all base types and can be installed into an existing opening with finished flooring
Reliable Lock and Ease of Use
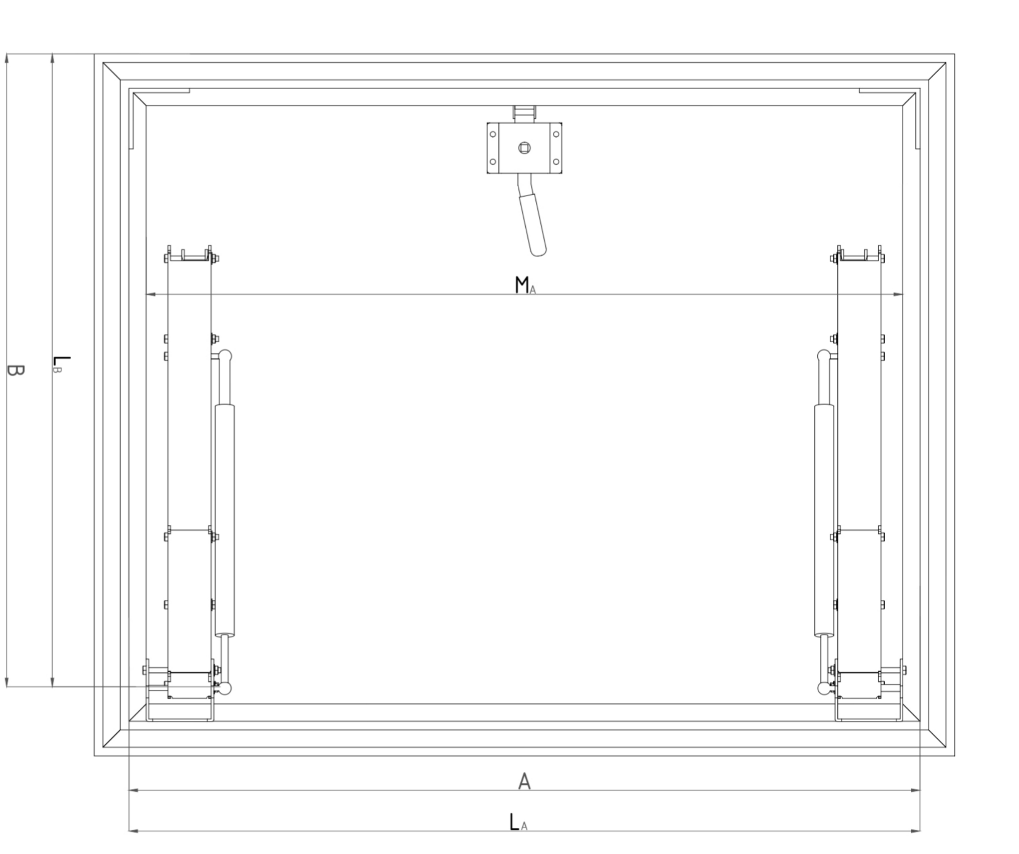
The hatch cover is secured with a durable industrial-grade lock featuring a convenient built-in handle, allowing the hatch to be opened from the inside.
Protection Against External Elements
The hatch is fully sealed. A rubber double-seal runs along the entire perimeter of the hutch cover, ensuring a tight fit. This provides full protection against dust and moisture. The hatch cover is insulated with PIR thermal insulation. When closed, it helps maintain the designated temperatures in both the lower and upper rooms.
Coating and Durability
Stainless steel is a material with high corrosion resistance. Two finish options are available: matte stainless steel without coating, or a powder-coated finish with subsequent thermal polymerization, which provides additional resistance to external influences and enhances aesthetic appeal.
Gas Springs and Smooth Opening
The hatch is equipped with high-quality European gas springs, individually selected for each size and load. These gas springs ensure smooth opening and controlled deceleration of the cover.
Materials and Construction
The hatch frame, cover and hinges are made of stainless steel, ensuring high mechanical strength, corrosion resistance, and a long service life of the product.

| A | Mounting Width (hinge-side) |
| B | Mounting Height |
| LA = A + 70mm | Overall width of the hatch (hinge side) |
| LB = B + 70mm | Overall height of the hatch |
| CA = A + 70mm | Door width (hinge side) |
| CB = B + 70mm | Door height |
| NA = A + 10mm | Width of the installation opening (hinge side) |
| NB = B + 10mm | Height of the installation opening |
| MA = A - 40mm | Clear opening width (hinge side) |
| MB = B - 40mm | Clear opening height |
| D = 178mm | Frame depth |
| (1) | Gas spring / Electric actuator |
| (2) | Finishing material / tread plate |
| (3) | Hinge |
| (4) | Seal |
| (5) | Anchors |
| (6) | Lock |
| (7) | Lock cylinder (height adjustable) |
| (8) | Insulation |
| (9) | Hatch cover surface material |
| (10) | Slab |


Main
Free Shipping within the EU
We offer free shipping to all European Union countries using the reliable courier service DHL.
Delivery time is approximately 5-6 business days.
International Shipping
If you are located outside the EU, the shipping cost is determined individually. Please contact us by email: info@grotus.eu
Customs Duties and Taxes
For customers from European Union countries:
- VAT is already included in the product price.
For customers from countries outside the European Union:
- VAT is not charged at checkout. Customs duties and fees are payable upon receipt of the goods in accordance with the laws of your country.
Payment Methods
We accept the following payment methods:
- Bank credit and debit cards
- Bank transfer
- PayPal
After placing and dispatching your order, you will receive a unique tracking number, which you can use to track your parcel status on the official DHL website.