Purpose and Application
The LIFT ELECTRO insulated stainless steel floor hatch with electro drive is designed for quick and convenient access to basements, cellars, utility areas, and various service communications. It is ideally suited for use in high-humidity environments, direct contact with water, and for use in other harsh environments
Hidden Integration and Finishing
This model is compatible with all types of subfloor structures and is engineered for installation into pre-existing openings, including those with completed floor finishes. The hatch design allows for easy integration into any type of flooring, creating a continuous surface that maintains the aesthetic integrity of your space. The hatch cover is intended for finishing with ceramic tiles, porcelain stoneware, microcement, microconcrete, wood planks, laminate, linoleum, quartz vinyl, or parquet.The innovative hinge mechanism allows for the accommodation of floor coverings up to 30 mm in thickness, ensuring compatibility with a wide range of finishing materials without compromising functionality or structural integrity.
Opening Mechanism and Ease of Use
The electric lifting and locking mechanism for the hatch is remotely controlled — via a wireless remote or a wall switch. Regardless of the surface type, weight, or dimensions of the structure, opening and closing are automatic, fast, and effortless — just one press is enough.
An option is available for manual opening of the hatch cover in case of a power outage.
Two actuator options and configurations are available to choose from:
1. The Basic Package includes:
An electric actuator with IP44 protection rating
An electric relay
A power supply
Two wireless remote controls
2. The PRO Package offers enhanced features and functionality, including:
Electric Actuator
Silent operation — ideal for residential spaces
Metal attachment
Protection rating IP66W — fully sealed, resistant to water jets
Requires no regular maintenance
Controller (Control Unit)
Protection rating IP69K — highest level of dust and water resistance
Built-in temperature sensor — prevents overheating
Waterproof connectors
Power Supply
Wireless Remote
Cable Kit
- Cables for connecting wall switches — 5 m, 2 m
- Cables for connecting the actuator and the power supply to the controller
- Splitter for connecting two switch cables
- Additional extension cable from the controller to the actuator — 1 m
Guaranteed Safety and Reliability
Option to adjust the pinch protection
Electromagnetic Compatibility: The device does not interfere with other equipment and is resistant to external electromagnetic influences
Structural Durability: Resistant to damage and ensures stable operation throughout its service life
Electrical Safety: Protection against electric shock — compliant with international standards
Installation
Installation is simple and requires no special skills.
Protection Against External Elements
The hatch is fully sealed. A rubber seal runs along the entire perimeter of the hutch cover, ensuring a tight fit. This provides full protection against dust and moisture. The hatch cover is insulated with PIR thermal insulation. When closed, it helps maintain the designated temperatures in both the lower and upper rooms.
Coating and Durability
Stainless steel is a material with high corrosion resistance. Two finish options are available: matte stainless steel without coating, or a powder-coated finish with subsequent thermal polymerization, which provides additional resistance to external influences and enhances aesthetic appeal.
Materials and Construction
The hatch frame and hinges are made of stainless steel, ensuring high mechanical strength, corrosion resistance, and a long service life of the product.

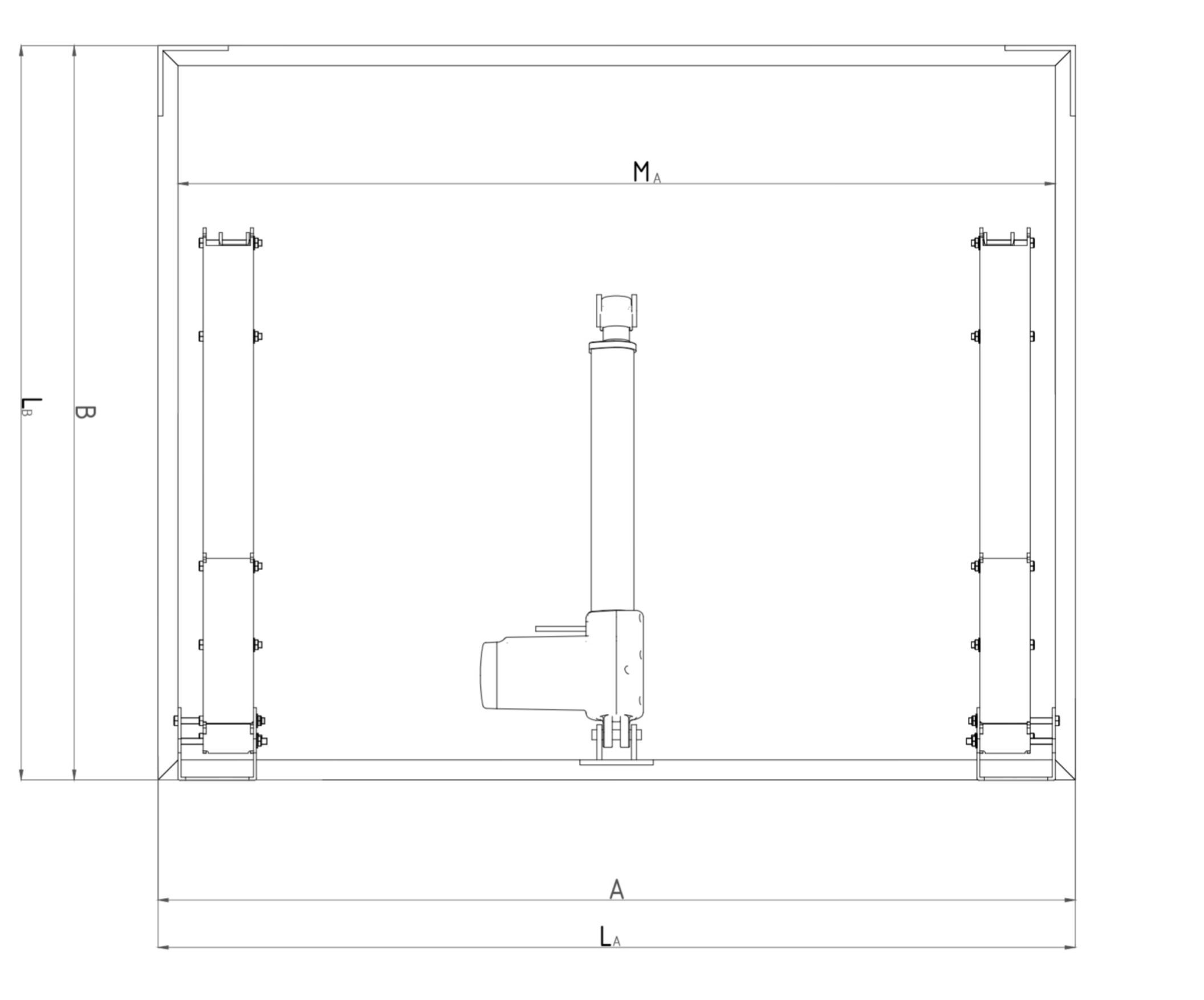
| A | Mounting Width (hinge-side) |
| B | Mounting Height |
| LA = A | Overall width of the hatch (hinge side) |
| LB = B | Overall height of the hatch |
| CA = A - 10mm | Door width (hinge side) |
| CB = B - 10mm | Door height |
| NA = A + 10mm | Width of the installation opening (hinge side) |
| NB = B + 10mm | Height of the installation opening |
| MA = A - 40mm | Clear opening width (hinge side) |
| MB = B - 40mm | Clear opening height |
| S ≤ 30mm | Thickness of the finishing material (including adhesive) |
| D = 185mm | Frame depth |
| (1) | Gas spring / Electric actuator |
| (2) | Finishing material / tread plate |
| (3) | Hinge |
| (4) | Seal |
| (5) | Anchors |
| (6) | Lock |
| (7) | Lock cylinder (height adjustable) |
| (8) | Insulation |
| (9) | Hatch cover surface material |
| (10) | Slab |


Main
Free Shipping within the EU
We offer free shipping to all European Union countries using the reliable courier service DHL.
Delivery time is approximately 5-6 business days.
International Shipping
If you are located outside the EU, the shipping cost is determined individually. Please contact us by email: info@grotus.eu
Customs Duties and Taxes
For customers from European Union countries:
- VAT is already included in the product price.
For customers from countries outside the European Union:
- VAT is not charged at checkout. Customs duties and fees are payable upon receipt of the goods in accordance with the laws of your country.
Payment Methods
We accept the following payment methods:
- Bank credit and debit cards
- Bank transfer
- PayPal
After placing and dispatching your order, you will receive a unique tracking number, which you can use to track your parcel status on the official DHL website.